登録No.387 【売買】 古川町 市街地
※飛騨市は国内有数の豪雪地帯でもあり、同じ市内でも地区によって地域の付き合い方やルールが異なります。
お住まい探しとともに移住をご検討の場合は
地域の情報収集・移住先での暮らしについて「飛騨市移住支援センター(TEL:0577-62-8904)」への相談を是非ともご活用ください。
外観
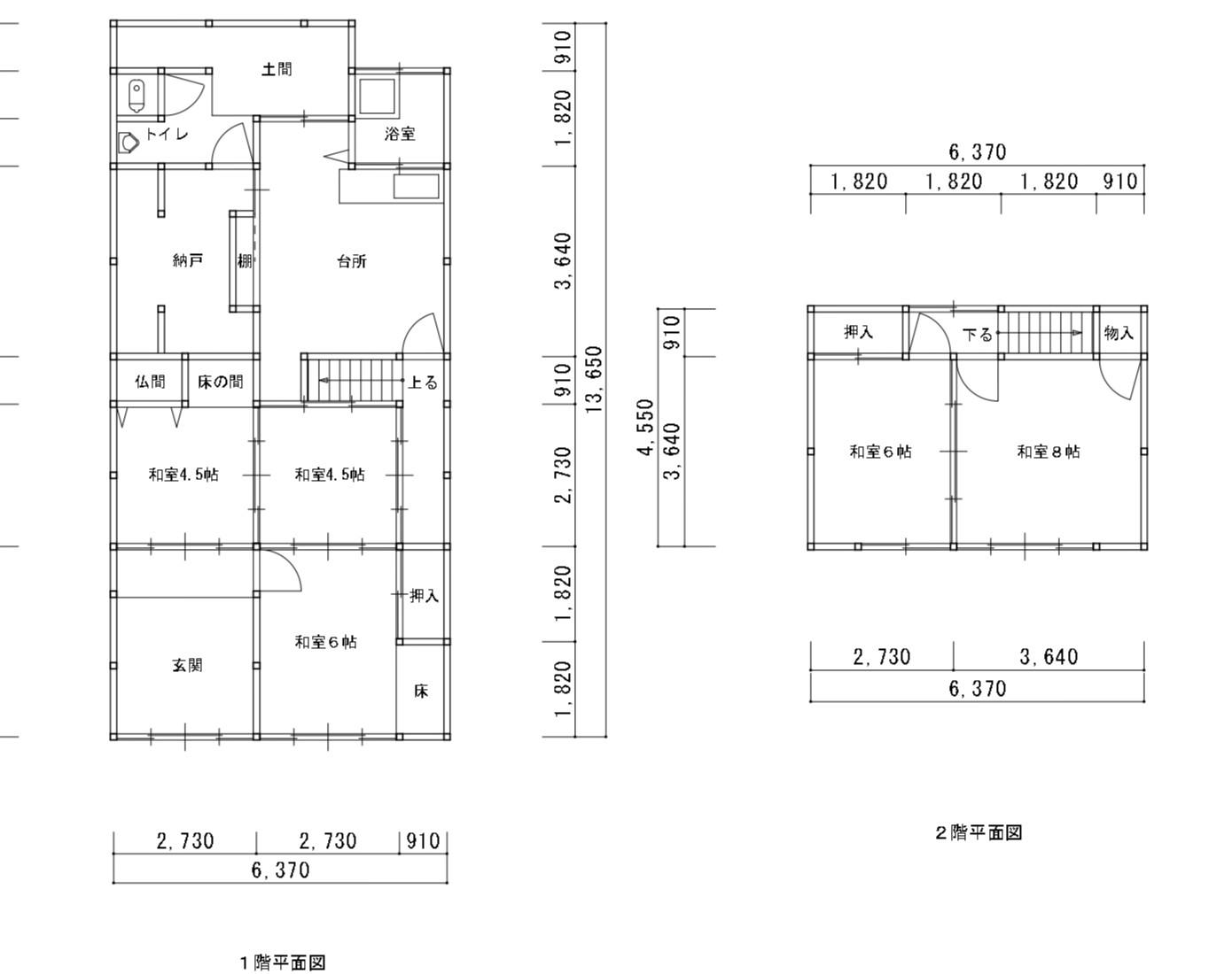
間取り図
風呂
部屋
キッチン
登録日 2025年12月 4日
| 住所地 | 飛騨市 古川町 杉崎字柳御所140-3 | ||
|---|---|---|---|
| 価格 | 売買 30 万円 | ||
| 賃貸 - 円/月 敷金 - ヶ月 礼金 - ヶ月 |
|||
| 構造 | 木造 | 建築年 | 昭和39年(1964年) |
| 建物面積 | 113.00㎡ | 敷地面積 | 102.87㎡ |
| 建ぺい率 | 容積率 | ||
| 補修要否 | 大幅な補修が必要 | 補修費用 | 入居者負担 |
| 設備状況等 | |||
|---|---|---|---|
| 電気 | 引き込み済 | 駐車場 | 無 |
| ガス | プロパン | 車庫 | 無 |
| 風呂 | 灯油 | 庭 | 無 |
| 水道 | 上水道 | 菜園 | 無 |
| 下水道 | なし | 物置き | 無 |
| トイレ | 汲み取り 和式 | 町内会 | 杉崎区 |
| テレビ受信 | ペット連れ | 可 | |
| 主要施設等への距離 | |||
|---|---|---|---|
| 駅 | JR高山線 杉崎駅 約0.4㎞ | 保育園 | さくら保育園 約0.8km |
| バス停 | 濃飛バス 杉崎駅約0.4㎞ | 小学校 | 古川西小学校 約1.5㎞ |
| 市役所 | 飛騨市役所本庁 約2.1㎞ | 中学校 | 古川中学校 約0.8㎞ |
| 病院 | 大高医院 約1㎞ | 温泉 | 飛騨古川桃源郷温泉 ぬく森の湯すぱ~ふる 約10㎞ |
| 消防署 | 古川消防署 約1.8㎞ | 食料品店 | ママショップうえの 約1.7㎞ |
| 警察署 | 飛騨警察署 約1.8㎞ | ホームセンター | ジャンボあらき古川店 約3.0㎞ |
| 金融機関 | 飛騨信用組合 西古川支店 約1.9㎞ | コンビニ | ファミリーマート 飛騨古川上野店 約1.5㎞ |
| 特記事項 物件PR等 | 大幅な補修が必要 | ||
|---|---|---|---|
| 物件アクセスマップ | 仲介業者 | 株式会社 匠和組 飛騨市古川町末広町1-15 TEL 0577-73-2222 FAX 0577-73-2232 http://shouwagumi.com/ |
|







